Home
OCCASIONI
PRODOTTI
MODELLI STANDARD
SPOGLIATOI
UFFICI
DORMITORI
CAPANNONI
CONTAINER MARITTIMI ISO
box in lamiera
SERVIZI IGIENICI
wc economico
wc per disabili
PREVENTIVI
INFO
CONTATTI
PRIVACY
FOTO GALLERY

   PREFABBRICATO USO UFFICIO O DORMITORIO CON SERVIZIO IGIENICO

€ 4.200,00 + IVA

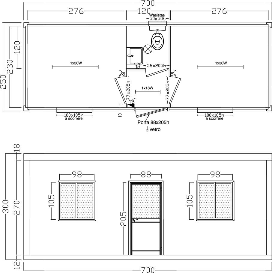
Planimetria  -  foto

 Monoblocco uso ufficio o dormitorio con  servizi igienici di dimensioni m. 7.00 x 2.50; H. 2.70 interna  , avente le seguenti caratteristiche:

 

Basamento:

 

Costituito da struttura particolarmente robusta in acciaio zincato preverniciato di idoneo spessore per il telaio perimetrale, su tale struttura viene posata una lamiera grecata da solaio zincata, sulla quale viene applicato il pavimento in multistrato marino ad incollaggio fenolico spessore 18 mm ricoperto da foglio in PVC calandrato da mm. 2 circa.

 

Copertura:

Tetto in profilati di acciaio zincato verniciato con pannellatura di copertura in doppia lamiera grecata superiormente e micronervata sulla superficie inferiore con isolamento in poliuretano espanso da mm. 40+30.

 

Pareti:

Pannelli di tamponatura esterna ed interna in doppia lamiera micronervata fosfatata e verniciata con interposto isolante idrofugo ed autoestinguente da mm. 40 in poliuretano espanso.

 

Infissi:

In alluminio, completi di vetri e tutti gli accessori d’uso; n. 2 finestre a scorrere con vetro Visarm 3+3 da cm. 98x105h,n. 1 finestra a wasistas con vetro stampato da cm. 50x50h, n. 1 porta esterna ½ vetro (Visarm 3+3) da cm. 88x205h, n. 2 porte interne cieche da cm. 77x205h e n. 1 porta interna cieca (libero/occupato) per il bagno da cm. 56x205h.

 

Impianto elettrico:

Realizzato in conformità delle normative vigenti della 46/90, comprende; n. 2 punti luce con plafoniera fluorescente stagna a soffitto da 1x36W, n. 1 punto luce con plafoniera fluorescente stagna a soffitto da 1x18W, n. 1 tartaruga stagna ad incandescenza nel locale WC (tutte con relativi interruttori) e n. 4 prese elettriche bivalenti 10/16A. Tale impianto è completato da un interruttore magnetotermico differenziale (salvavita) e scatola esterna per allaccio corrente.

 

Impianto idrosanitario:

Impianto idro-sanitario con percorso a vista lungo le pareti interne composto da: tazza all’inglese in porcellana bianca con cassetta di scarico a zaino e lavabo a colonna in porcellana bianca completo di rubinetto (solo freddo). Il tutto pronto per essere collegato a rete idrica e fognaria, completo di  scarichi, raccorderia.

 

 

INDIETRO